Высокая скорость, точные чертежи и понятная презентация проекта — то, что напрямую влияет на доверие заказчика и стоимость работы. В этом материале мы делимся опытом специалиста, который выстроил процесс проектирования в Archicad так, что выиграли и он, и клиент.
Добрый день! Меня зовут Александра, и я уже более 10 лет в дизайне и архитектуре.
И, несмотря на стаж, постоянно продолжаю учиться, прохожу курсы от AMS3 "Проектирование интерьера в Archicad" и "Расчеты в Archicad".
Именно благодаря вашим курсам я вышла на новый уровень скорости и качества создания интерьера.
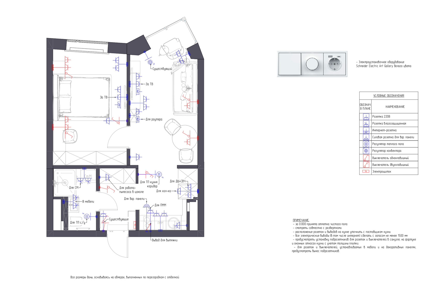
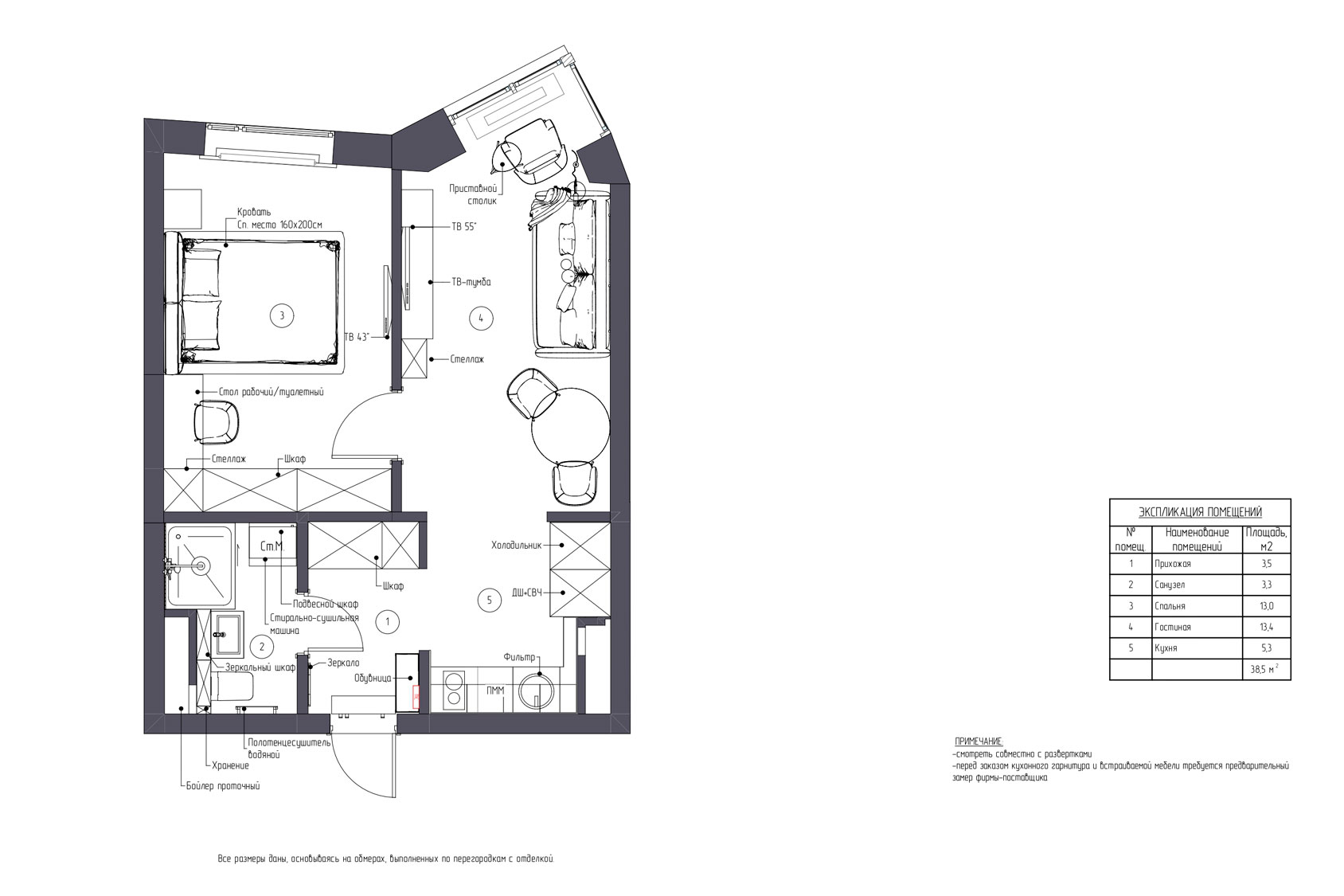
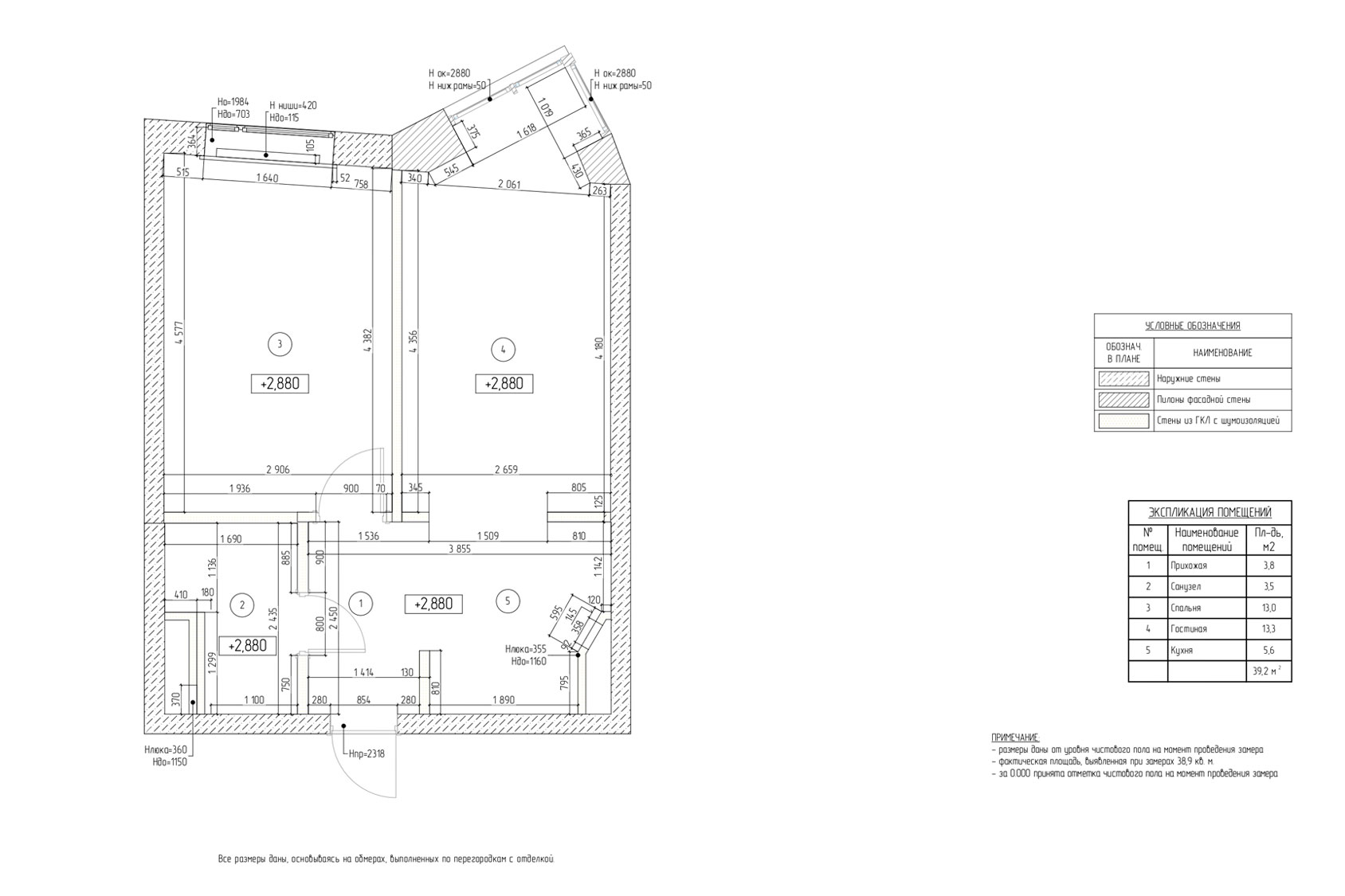
Как было раньше - если клиент не готов платить или не хочет ждать 3д визуализацию, то нужно делать коллажи в Photoshop. А там и масштаб сбивается, и пропорции едут. А потом переносить это все в Архикад, чтобы сделать чертежи.
Теперь все очень просто - создаешь проект сразу в Архикад, с 3дМаксовскими моделями, один день - и все готово, и все уже в чертежной программе. Можно «прогулять» заказчика по его будущему интерьеру прямо на презентации, и скинуть ему bimx файл, чтобы не скучал)))
Этот навык позволил мне в этом году сделать самый молниеносный проект за всю мою практику - 4 месяца от замера до декорирования с учетом всех строительных работ. И моя работа позволила заказчику сдать эту квартиру ровно в 2 раза дороже, чем он мог бы без моего вмешательства.
Теперь я могу что-то на волшебном - работать в той недостижимой точке между скоростью, качеством и ценой.
Опыт Александры - наглядное подтверждение того, что обучение работает не только для новичков. Даже при большом стаже правильно выстроенная система в Archicad позволяет радикально ускорить процессы, убрать лишние этапы и повысить ценность работы для заказчика.
Именно такие результаты мы и закладываем в курсы: не «красивые кнопки», а практические инструменты, которые сразу встраиваются в реальную работу и дают измеримый эффект - во времени, качестве и доходе.
Контакты:
Если вам близок подход Александры к работе - через скорость, точность и продуманную презентацию проекта - вы можете обратиться в ее архитектурное бюро "ТишинА" для сотрудничества, консультаций или разработки интерьера.









