Наши студенты приходят в дизайн интерьера разными путями. Кто-то - сразу после профильного образования. Кто-то - уже имея опыт в другой сфере. А кто-то возвращается к этой идее спустя годы.
История Анастасии как раз про такой путь. Путь, в котором не было опыта в проектировании, но было желание попробовать и постепенно выстроить себя в новой профессии.
Я по образованию специалист по рекламе и PR. Работала по специальности, затем перешла в сферу SMM, где работаю и сейчас.
20 лет назад были попытки пойти в вуз на дизайнера, но личные обстоятельства в тот момент сложились иным образом. И на много лет я оставила свою мечту.
А 3 года назад в процессе ремонта собственной квартиры, я получила импульс, что это моё. Собравшись духом, я приняла решение пойти в дизайн.
Когда встал вопрос, какую программу для проектирования осваивать, мой выбор пал на Revit.
Делая первые шаги в профессии и не имея опыта в чертежах, я столкнулась с множеством нюансов, которые сначала казались сложными и непонятными. Было непросто, но интерес к профессии мечты и любовь к делу постоянно двигали вперёд. Для меня, как для человека с нулевым опытом в программах и проектировании, это был настоящий вызов. Изучала всё долго, пересматривала уроки, но благодаря поддержке школы ни разу не почувствовала себя брошенной.
В процессе я неожиданно для себя поняла, что мне действительно нравится чертить - и это стало ещё одной точкой опоры.
Диплом на основе реального проекта
Курс я проходила в своём темпе, совмещая обучение с работой, поэтому на освоение программы у меня ушёл примерно год. Получалось заниматься 2-3 раза в неделю по несколько часов. Но были и перерывы, не без этого))
Всё это время - шаг за шагом я двигалась с поддержкой куратора и помощью в нашем общем чате. Что-то давалось сразу, а что-то требовало больше времени и внимания.
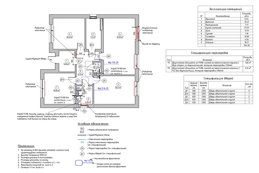
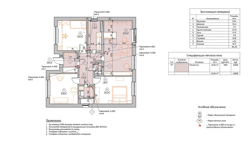
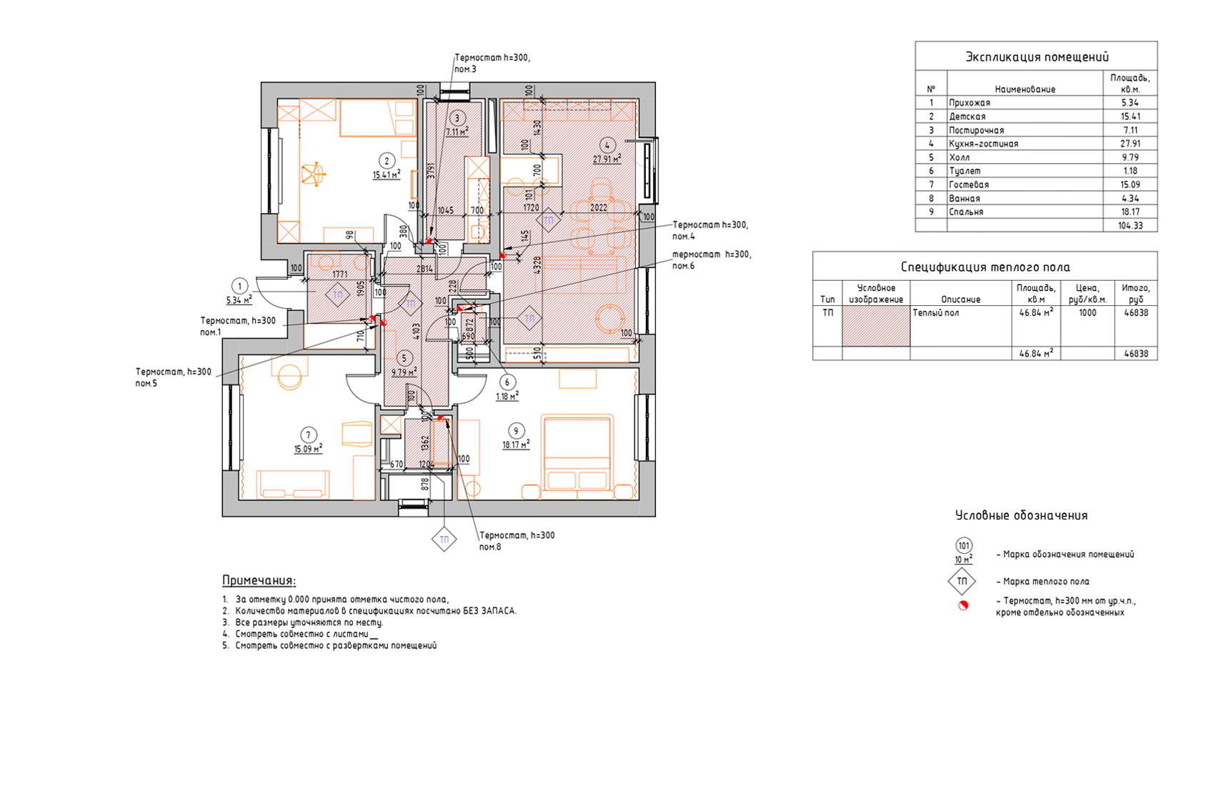
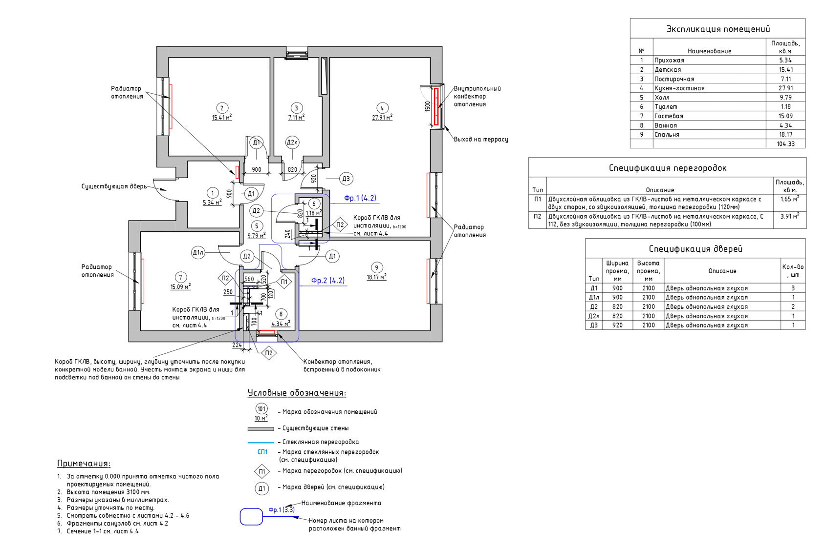
Моя дипломная работа - это реальный объект. Это дом моей сестры, который только что построился, и им нужен был дизайн-проект. Сейчас дом находится в стадии реализации, чем я особенно горжусь.
Дипломный проект я выполняла долго, потому что это был не только мой первый проект в Revit, но и вообще первый проект.
Сейчас я продолжаю выполнять чертежи в Revit и развиваться в профессии.
Я уже полтора года в процессе обучения: закончила очный курс, освоила чертежи и сейчас прохожу курс Home Styler. Собираю портфолио. Первые проекты и запросы пока приходят от знакомых.
[banner-art]
В истории Анастасии нет резких поворотов или быстрых результатов. Зато есть другое - постепенное движение: от первых шагов без опыта до работы с реальным проектом и понимания, как двигаться дальше.
Такие истории хорошо показывают, что вход в профессию - это последовательный процесс, в котором важны регулярность и практика.
Контакты
Сейчас Анастасия продолжает развиваться в профессии и открыта к новым задачам.
Основной профиль - чертежи и полный цикл дизайн-проекта.
Если вы хотите предложить сотрудничество, вы можете связаться с Анастасией напрямую:
- Телеграм
- Адрес электронной почты защищен от спам-ботов. Для просмотра адреса в вашем браузере должен быть включен Javascript.














