Работа в Archicad может выглядеть уверенной и стабильной, даже когда большая часть возможностей программы остаётся за рамками повседневных процессов. Этот рассказ показывает, как профессиональный путь длиной в десятилетия приводит к переосмыслению подхода и настоящему росту.
Меня зовут Татьяна Сабурова, я дизайнер интерьеров. Историю моего знакомства с Arсhiсad можно поделить на несколько этапов.
Этап первый. Учебная эпоха
Университет я закончила в 1998 году. Мы жили тогда в эпоху первых компьютеров, которые считались признаком достатка. В то время не каждое учебное заведение могло позволить себе нормальный компьютерный класс.
Но в нашем университете с этим было все хорошо, кроме того, что нам не преподавали программ по профилю. Максимум, чему нас научили, — рисовать простенькие фигуры в CorelDraw. И итоговое задание на экзамене заключалось лишь в изображении кораблика, составленного из треугольников на волнах. Понятно, что после окончания университета мои знания были весьма поверхностными, однако благодаря ручной подготовке я смогла успешно справляться с начальными проектами.
Однако найти постоянную работу оказалось непросто: везде требовалось владение специализированными программами, и мои умения рисовать кораблики никого особо не впечатляли. Тогда-то я поняла, что настало время осваивать ArсhiCAD самостоятельно. У меня даже не было собственного компьютера, приходилось ежедневно ходить вечером к маме на работу и учиться на её компьютере.
Сначала я всё строила методом проб и ошибок, благо интерфейс ArсhiCAD изначально оказался простым и понятным. Потом подруга "дала поносить" учебник по Arсhiсad, и я почерпнула оттуда дополнительные полезные советы. Первый этап завершился моим трудоустройством, хотя на работе все чертежи требовали выполнять преимущественно в CorelDraw, а визуализации создавались в 3DMax. АрхиКАД использовался крайне редко — только для проверки объёмов планировок.
Параллельно основной работе я получала первые самостоятельные проекты и снова обратилась к ArсhiCAD. Хотя создание чертежей с размерами в ArсhiCAD происходило быстро, качество развёрток оставляло желать лучшего. Отсутствовали красивые штриховки, графические приемы, и потому удобней было создавать их в CorelDraw, а «красивую» визуализацию делать так же в 3DMax. И да, делать электрику линиями тоже считалось нормой!
Вторая серия моих приключений, Москва зовёт!
Несколько лет спустя, в 2010-м, судьба занесла меня в столицу. Новое место работы — новая задача: обязательное условие работать в общем шаблоне ArсhiCAD.
Оказалось, что мой предыдущий опыт сильно отличался от профессионального подхода. Именно тут я впервые узнала о слоях, линиях, новых видах штриховок, градиентах. Тем не менее, многие элементы интерьера, вроде розеток и выключателей, продолжали прорисовываться вручную, а развёртки готовились по автокадовской методике. И все так же расчет ведомостей вручную.
Таким образом я проработала в этой компании пару лет и потом «фрилансила» еще несколько лет с этим же шаблоном.
Этап третий
Не знаю какое название дать этому этапу. Но в 2018-м году, решаюсь устроиться в одну крутую дизайнерскую студию, где делают интерьеры Премиум сегмента. Там у меня были высокие ожидания от новых методов работы, ведь столько изменилось за эти годы.
Но что оказалось? Я была поражена до глубины души. Многие коллеги использовали те же самые инструменты, которыми я сама пользовалась еще в начале своей карьеры, в начале двухтысячных!! И ладно бы только это, некоторые товарищи умудрялись сохранять все планы прямо на одном рабочем плане (Автокадовским методом), создавая цифровые кладбища. Файл становился настолько тяжелым, что буквально «умирал» от перегрузки данных!
Я решила стать наставником местных дизайнеров и познакомить их с волшебным миром ArсhiCAD. Представьте себе картину: сидите вы такая уверенная в своих силах. А вокруг вас столпились ваши коллеги -дизайнеры, которые смотрят на вас восторженными глазам и ждут, когда начнется магия! Я показываю им свой шаблон, рассказывая о возможностях программы, слои, линии. Девчонки буквально пищали от восторга. Я чувствовала себя «Бахиней дизайна»!
Но вот тут-то и началось самое интересное... Через некоторое время к нам в студию устроился работать архитектор по имени Сергей. Парень тихий, спокойный, сидит себе такой, рисует красивые фасады, никому не мешает, начальству нравится. И вот однажды, поддавшись своему внутреннему чувству превосходства, я решила продемонстрировать ему все тонкости работы в Archicad. «Покажи-ка, Сережа, твой проект», - говорю я снисходительно, поднимаясь над ним на невидимых крыльях моей виртуозности. Он послушно открывает файл, и… бац! Мое чувство собственной важности резко упало вниз, как камень в воду.
Оказалось, что мой коллега уже прекрасно разбирается в программе и использует такие техники, о которых я сама только мечтала! В общем, вместо того чтобы учить кого-то, я получила настоящий мастер-класс прямо у себя в студии.
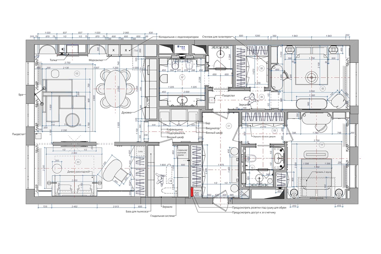
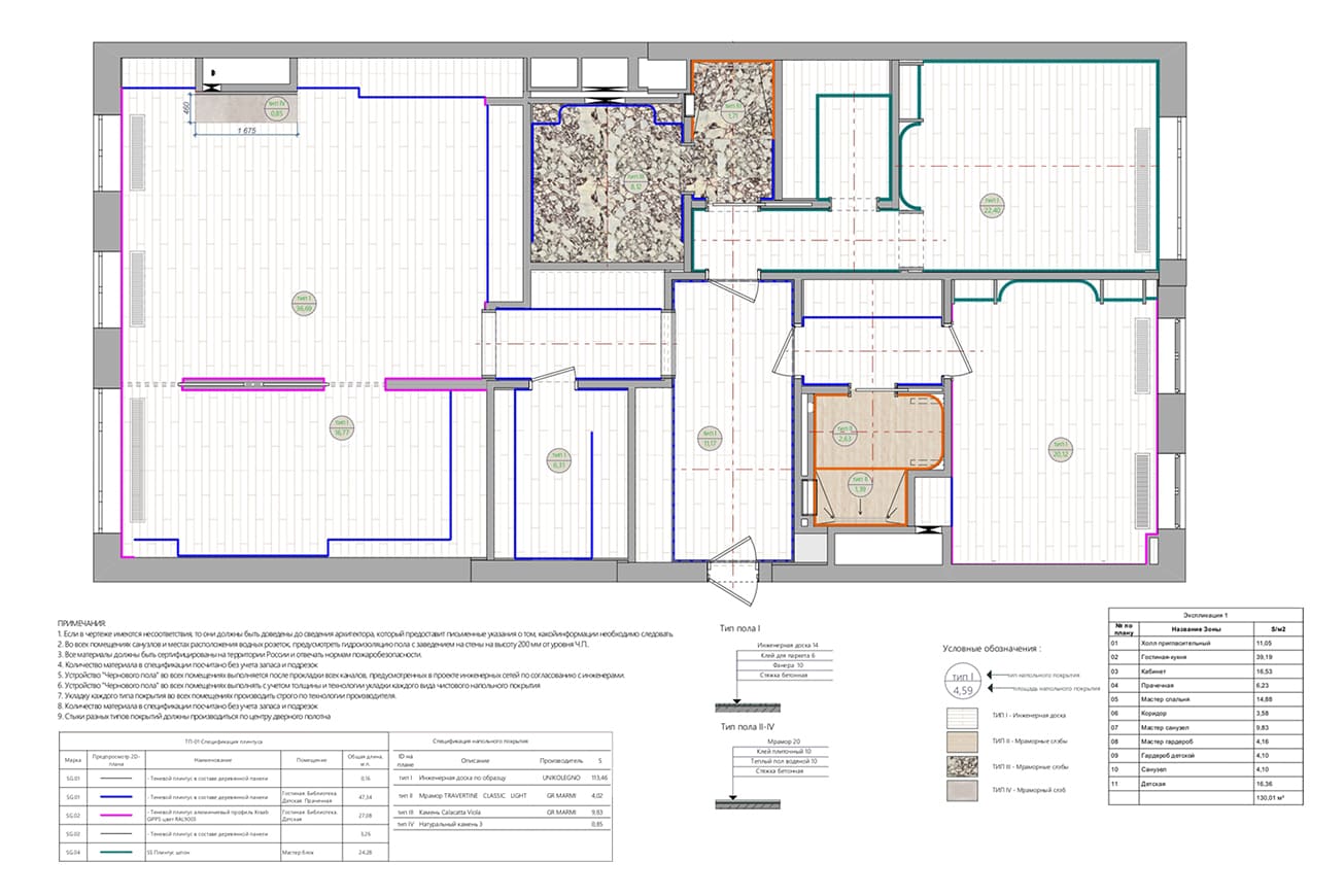
У этой программы есть просто невероятные функции, о которых я даже не подозревала. Например, о том, что можно создавать многослойные конструкции из строительных материалов прямо внутри интерфейса. А еще возможность работать со сложным профилем и создавать не только архитектурные элементы, но и мебель. Но самое крутое было узнать, что есть возможность электрику делать библиотечными объектами. И программа умеет автоматически считать объемы и формировать ведомости материалов. Это реально экономит кучу времени и сил. Больше никаких ручных подсчетов и ошибок в расчетах- все автоматизировано до миллиметра.
Именно тогда я осознала, что раньше изучала программу лишь фрагментарно, бессистемно. Даже попытки разобраться самостоятельно по урокам в интернете были поверхностными. Моя внутренняя лень будто специально мешала сосредоточиться и углубляться в изучение. Но однажды я решила кардинально изменить ситуацию и начала активно искать полезные онлайн-курсы. Так совершенно случайно натолкнулась на онлайн платформу AMS3. А уроки от Надежды Бейнер, это просто волшебство. Её манера подачи материала оказалась настолько простой и понятной, что сразу же привлекла моё внимание.
Ну что ж, дорогие друзья, урок усвоен. Если ваша программа даёт вам миллион инструментов, значит, скорее всего, вы используете только половину процентов от её потенциала. Теперь моя работа стала намного легче и приятнее. Честно говоря, чувствую себя немного неловко от того, что столько лет пользовалась только базовыми функциями, когда рядом были такие мощные инструменты.
Archicad — это не просто программа для чертежей, а полноценная система, которая раскрывается только при грамотном и последовательном подходе. Когда появляется методология, исчезает хаос, ручная работа и постоянные переделки. Именно этому мы учим в AMS³ — работать не больше, а качественнее. Понять логику программы - это наш основной принцип обучения. Если вы чувствуете, что выросли из фрагментарных знаний и хотите работать в софте на действительно профессиональном уровне — приглашаем вас присоединиться к обучению в AMS³. Заходите в каталог курсов и выбирайте нужное обучение.
Контакты
Татьяна открыта к профессиональному взаимодействию, консультациям и совместным проектам.
Нужен дизайнер интерьеров? Пишите Татьяне в Telegram или Адрес электронной почты защищен от спам-ботов. Для просмотра адреса в вашем браузере должен быть включен Javascript..







