История, которую Юлия прислала нам на конкурс, не оставила нас равнодушными. Поэтому хотим поделитья ею с вами. Это история - про силу воли. Про момент, когда теория есть, а уверенности и системы ещё нет.
Мы особенно ценим такие кейсы, потому что именно с них начинается настоящий профессиональный рост.
«Не хороните меня за плинтусом»
История о том, как белый плинтус чуть не похоронил мою карьеру дизайнера (и как меня спас AMS3).
В колледже нас учили «по-взрослому»: шаблоны, старые методички и видеокурсы с YouTube. Информация героически влетала в голову и с не меньшим энтузиазмом вылетала. Колледж дал хорошую теоретическую базу, но навыки реальной работы по какой-то причине не приехали вместе с дипломом. Зато приехал красный — для красоты, видимо.
В начале 2025 года я решила: всё, хватит бояться, пора работать по специальности. Мои первые проекты рождались в онлайн-конструкторах типа Remplanner, визуалы собирались в виде коллажей в CorelDRAW, а планировки делались в Archicad. Немного Франкенштейн, но каждый элемент — от чистого сердца.
И тут появляется ОН — мой первый заказчик. Не просто заказчик, а житель дома комфорт-плюс, то есть уровень ожиданий — «хочу, как на Пинтересте, но вчера». Я честно призналась: — С визуализацией у меня пока так себе, зато с чертежами — конфетка! На том и сошлись.
Дальше было кино: я работала дни и ночи, собирала проект как пазл, и через месяц у меня был… хороший, но ооочень непрезентабельный проект. Знаете этот момент, когда внутри ты молодец, а снаружи — скриншоты из Remplanner?
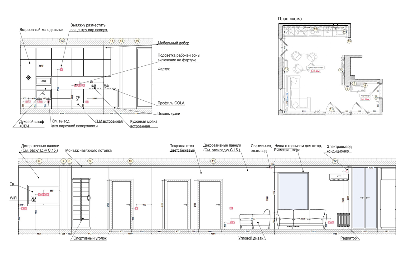
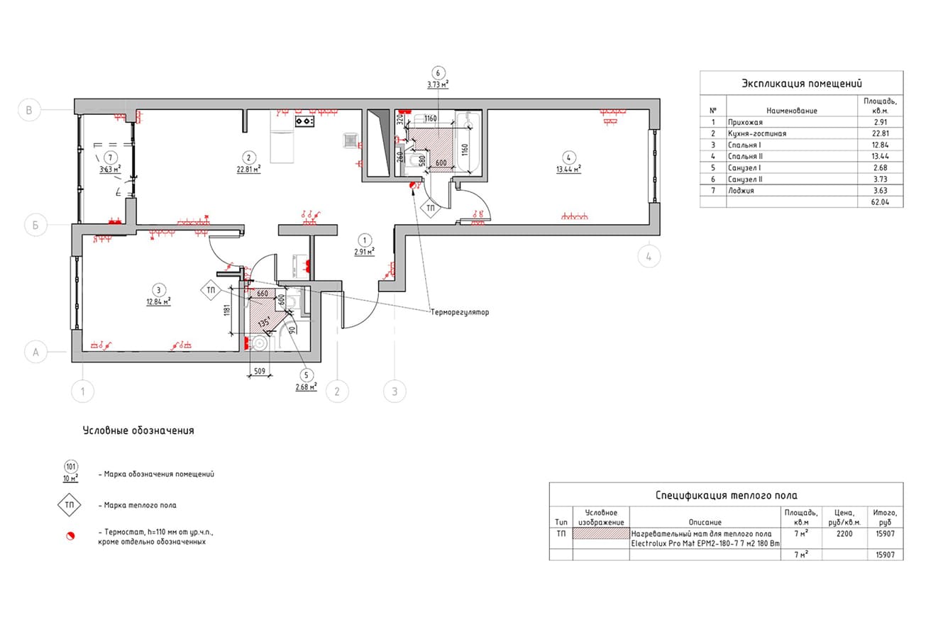
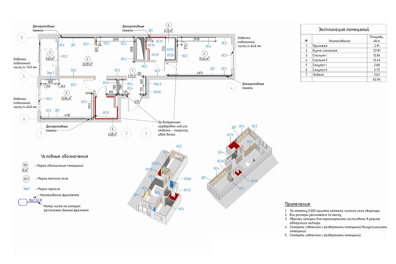
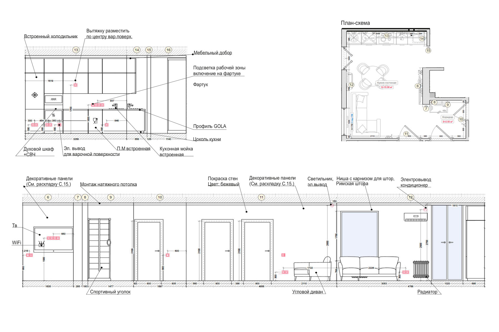
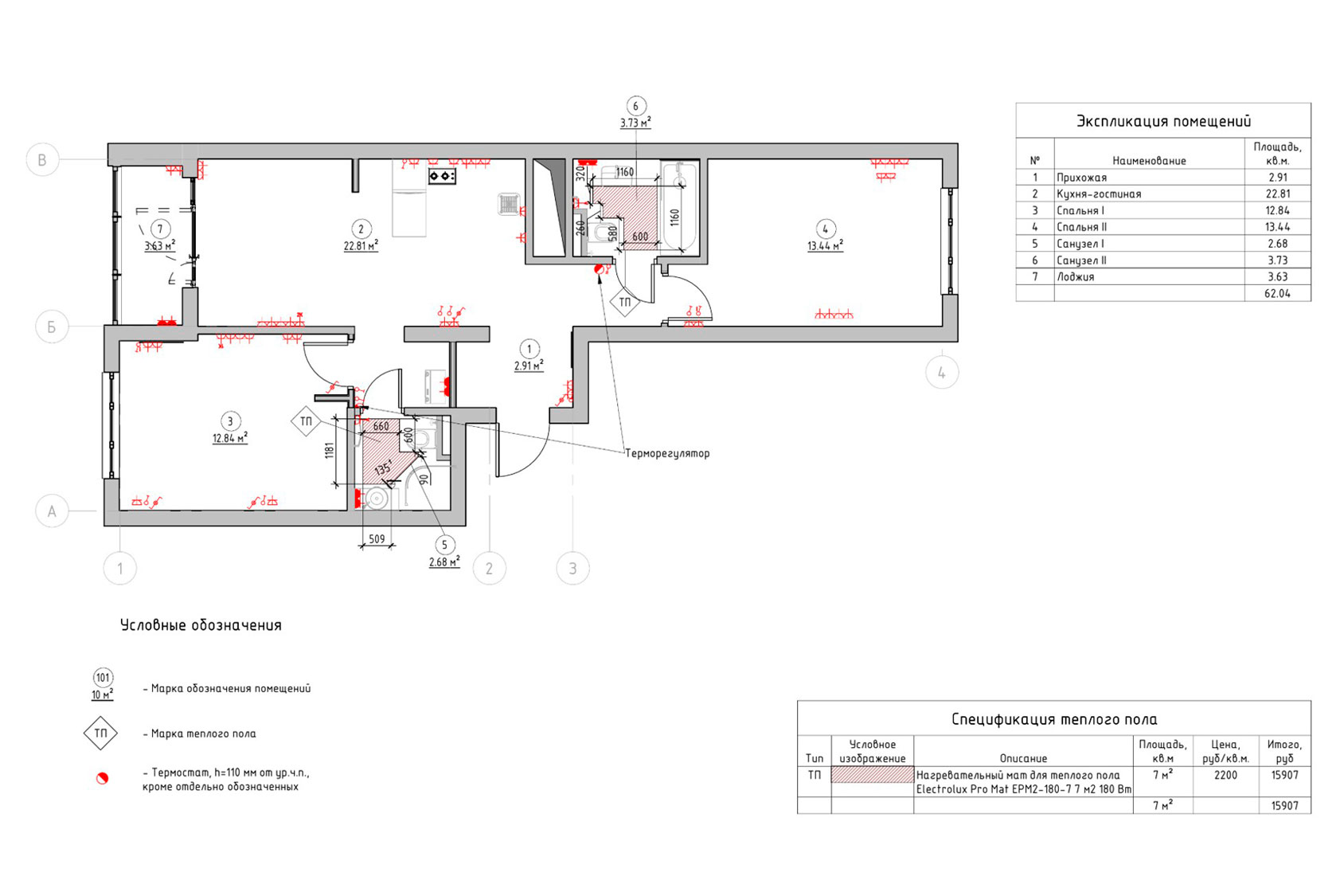
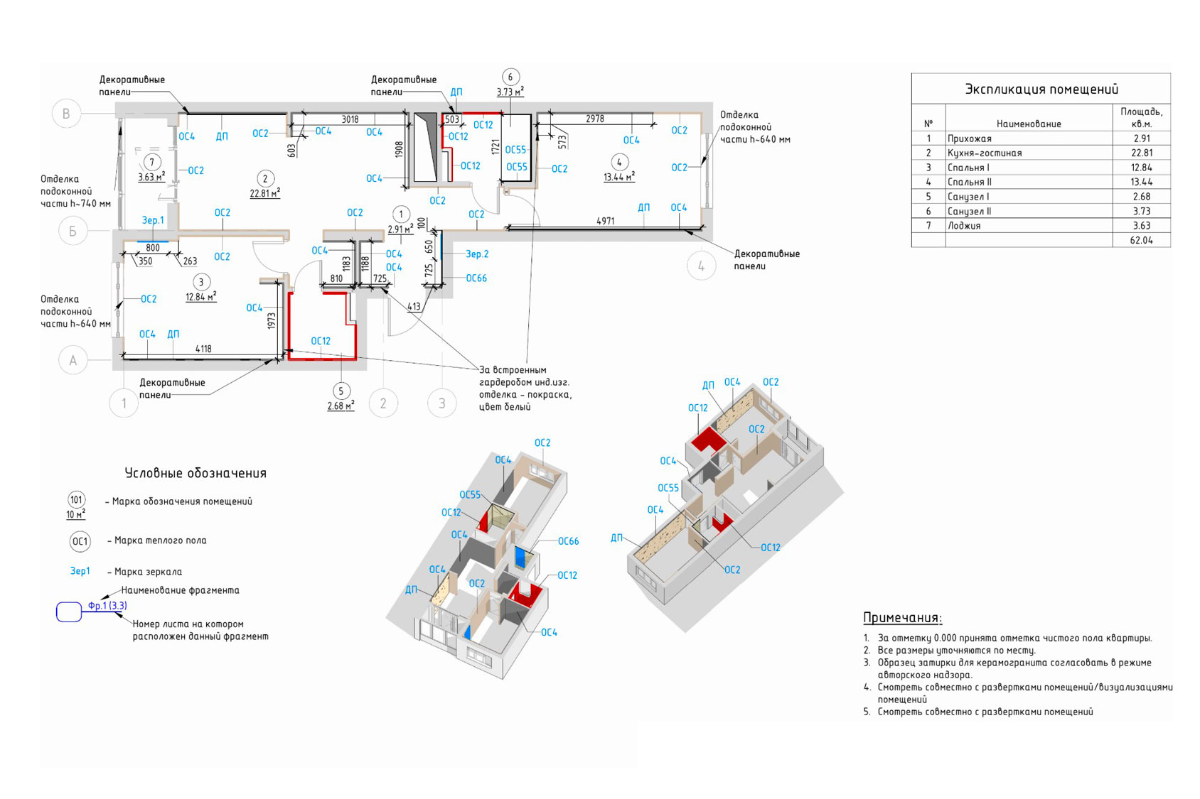
Заказчик открывает материалы… и не видит на визуализации свой драгоценный белый плинтус. А он за него, между прочим, платит! Чертежи с зелёным контуром (да, тем самым ужасным) выглядели как доклад о НЛО: вроде что-то видно, но верить страшно.
И тут мой дорогой клиент торжественно объявляет, что разочарован в дизайнерах как явлении и, возможно, пойдёт в суд.

На этом месте где-то в глубине души захрустело всё:
четыре года обучения, красный диплом — и ощущение, что ты не дизайнер, а главный герой анекдота.
Первое переобучение и «любовь с первого рендера»
Но я человек живучий. Немного поплакала внутренним дизайнером, собралась — и через какое-то время мне попадается бесплатный курс по визуализации в Homestyler и 3ds Max. Конечно, я сразу перехожу по ссылке. И это был тот самый момент: любовь с первого рендера.
За месяц я научилась визуализировать так, чтобы клиент видел не только плинтус, но и жизнь в будущем интерьере. Параллельно стала гораздо увереннее работать в Archicad. Листаю дальше — вижу какой-то Revit. Думаю: «Ну да, его ещё не так уважают, как Archicad… а зря».
На деньги от моего «легендарного» первого клиента (того самого, с белым плинтусом и угрозой суда) я беру и покупаю курс. Потому что лучшее вложение — это не сумка, а знания.
И вот чудо: с первых уроков я уже не делаю абстрактные упражнения, а сразу работаю над реальным проектом заказчика.
Два проекта в Revit — и здравствуйте, путь «с нуля до профи».
Revit + Homestyler = система и порядок
Сейчас Homestyler честно даёт мне хлеб, а Revit — уверенность и порядок в чертежах. Честно говоря, если бы не AMS3, я бы, возможно, махнула рукой на профессию дизайнера интерьера и ушла выращивать кактусы.
А так — информация подаётся шикарно: чётко, по делу, без воды и отсебятины. Можно смотреть и думать: «А вот так нас в колледже не учили».
Теперь я регулярно захожу на сайт и с лёгкой дизайнерской жадностью «облизываюсь» на новые курсы =D
Жду того самого клиента, который не только оплатит проект, но и поможет мне прокачаться ещё сильнее — стать умнее, спокойнее и счастливее.
Всё это — просто великолепная база, которая действительно нужна дизайнеру интерьера, а не для галочки в резюме.
И вишенка на торте: всё это происходило параллельно с тем, как я писала дипломную работу в вузе… с двумя маленькими детьми на руках.
Так что если вдруг кто-то сомневается, можно ли одновременно выжить, учиться и развиваться в дизайне — я хожу живая, работаю и даже смеюсь над своей историей 😄
Почти у каждого дизайнера есть свой «первый проект, который хотелось бы забыть».
Разница лишь в том, кто делает вид, что его не было, а кто превращает этот опыт в точку роста.
Эта история - не про «провал» и не про быстрый успех. Она про путь от разрозненных решений к системному мышлению дизайнера. Именно ради таких трансформаций мы и создаём наши курсы.
Контакты
По вопросам сотрудничества, участия в проектах или обмена опытом вы можете обратиться к Юлии напрямую. Контактные данные:









