По образованию Земфира - архитектор. Но в работе оказалась в инженерии, а Revit долго оставался программой, к которой не хотелось возвращаться.
Пока в какой-то момент не появилась задача разобраться в нём по-настоящему - и начать использовать в работе.
Всем привет, меня зовут Земфира. Я прошла курс «Revit для дизайнеров интерьера». Сама по профессии я архитектор, но так сложились обстоятельства, что работала я инженером-проектировщиком в слаботочных системах.
До этого с программой Revit я была знакома поверхностно, и если честно в студенческие годы ее не очень любила, т.к. она казалась мне сложной. На работе я работала в Autocad, и небольшое количество времени была работа и в Revit.
Но вот настал новый этап моей жизни – декрет. Началось переосмысление и жизни, и выборов, которые я делала. И тут я поняла, что нужно что-то менять, потому что оставаться дальше в инженерии у меня не было желания, но и в архитектуру уже было поздно (а может и нет) идти. В любом случае, программа Revit очень актуальна на рынке, везде она требуется.
Я начала искать курсы и наткнулась на платформу AMS3. Недолго думая, я приобрела курс по Revit для дизайнеров, а дальше - курс по 3ds Max.
О курсе: я могу сказать, что видеоролики, созданные Екатериной Лакутиновой, очень подробно описывают всю работу в Revit. Действительно, они очень помогли в познании программы. Были моменты сложности, до сих пор помню, как пробовала создавать параметрическое семейство встроенного светильника, в видеоролике, к сожалению, не были учтены некоторые параметры, которые нужно было задать, поэтому посидев я решила, что «добью» этот светильник. В итоге, я нашла, где нужно было добавить параметры, и светильник начал работать как нужно. Это вселило в меня любовь к семействам, очень интересно создавать что-то свое.
От диплома к первому заказу через Behance
К дипломной работе я приступила не сразу, сначала мне хотелось отработать новые навыки на своей квартире, я создала проект и выставила его на платформе Behance и таким образом получила своего первого Заказчика, как чертежник.
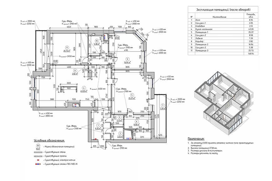
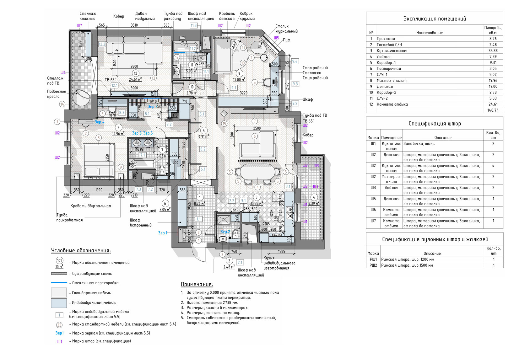
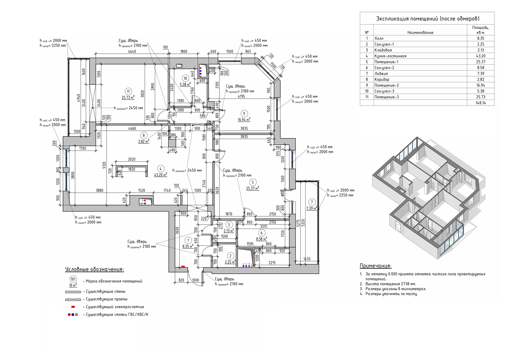
Дипломную работу я решила делать уже с немного измененной подачей. Создавала много своих семейств мебели (очень нравится, прям кайфую), штриховки, а также меняла некоторые марки.
Да еще далеко до идеала, и я до сих что-то меняю, уже в работе с Заказчиком, но основы, которые заложил данный курс мне очень помогли. Еще раз хочу сказать спасибо Екатерине Лакутиновой и команде «AMS³» за такой доступный материал! Честно, жалею, что не занялась изучением Revit еще в студенчестве)) Сейчас ударными шагами осваиваю, и не слукавлю, у меня очень хорошо получается!)
[banner-art]
История Земфиры показывает, как меняется отношение к инструменту, когда появляется системное понимание и практика.
И именно такая база позволяет перейти от знакомства с программой к работе с реальными задачами.
Если вы хотите разобраться с Revit и начать использовать его в работе, важно не просто изучить интерфейс программы, а выстроить системное понимание и закрепить его на практике. Именно на этом построен курс «Revit для дизайнеров интерьера» - с упором на задачи, с которыми вы будете сталкиваться в работе.
Контакты
Если вы ищете специалиста по чертежам или работе в Revit, Земфира открыта к новым задачам и сотрудничеству.
"Я занимаюсь не только семействами, но еще и полным дизайн-проектом! Помимо этого беру на разработку чертежи для уже готового дизайн проекта, если ты дизайнер и тебе нужен чертежник буду рада сотрудничеству".
Связаться можно напрямую:
Также подписывайтесь на Телеграм-канал и ВК-сообщество Земфиры с семействами для Revit.













